differences in 25 and earlier frames from a 26
Forum rules
If you need help logging in, or have question about how something works, use the Support forum located here Support Forum
Complete set of Forum Rules Forum Rules
If you need help logging in, or have question about how something works, use the Support forum located here Support Forum
Complete set of Forum Rules Forum Rules
-
Topic author - Posts: 937
- Joined: Sun Jan 06, 2019 3:59 pm
- First Name: William
- Last Name: Vanderburg
- * REQUIRED* Type and Year of Model Ts owned: 2
- Location: Jackson, NJ
differences in 25 and earlier frames from a 26
Other that the extra extensions that were welded to the front, longer rear crossmember, and the possibly the brake quadrant, is there any differences in a 1926 frame from earlier ones?
I was thinking how one could modify a 26 frame to fit an earlier car, IF a regular frame could not be procured.
I was thinking how one could modify a 26 frame to fit an earlier car, IF a regular frame could not be procured.
William L Vanderburg
1925 Touring
1922 Center Door Sedan
1925 Touring
1922 Center Door Sedan
-
- Posts: 4505
- Joined: Sun Jan 06, 2019 8:00 pm
- First Name: John
- Last Name: Kuehn
- * REQUIRED* Type and Year of Model Ts owned: 19 Roadster, 21 Touring, 24 Coupe
- Location: Texas
Re: differences in 25 and earlier frames from a 26
I was thinking the 26-27 frames are more desirable than the 17-25 frames. I know that’s not answering your question but seems they would bring more money at Chickasha a few years ago when I was going.
But wouldn’t you have to drill different holes for the earlier fender brackets since they are different for 26? That’s what I can remember.
But wouldn’t you have to drill different holes for the earlier fender brackets since they are different for 26? That’s what I can remember.
-
Topic author - Posts: 937
- Joined: Sun Jan 06, 2019 3:59 pm
- First Name: William
- Last Name: Vanderburg
- * REQUIRED* Type and Year of Model Ts owned: 2
- Location: Jackson, NJ
Re: differences in 25 and earlier frames from a 26
I don't know all the differences, that's why the question comes to me. What all exactly would need to be changed?
William L Vanderburg
1925 Touring
1922 Center Door Sedan
1925 Touring
1922 Center Door Sedan
-
- Posts: 5423
- Joined: Sat Jan 05, 2019 1:57 pm
- First Name: Mark
- Last Name: Gregush
- * REQUIRED* Type and Year of Model Ts owned: 1925 cutdown PU, 1948 F2 Ford flat head 6 pickup 3 speed
- Location: Portland Or
- Board Member Since: 1999
Re: differences in 25 and earlier frames from a 26
Nothing was welded, all riveted. Besides the different brackets at the front that were part of the fender iron mounts, the rear cross member was longer/higher at the center along with different corner brackets. there were brackets also added along the side for the hood shelf/latches. The parts catalog list different side rails for 26/27, without side by side don't know if different holes for the brackets or? About the only thing that stayed the same was the front cross member for all years.
I know the voices aren't real but damn they have some good ideas!
1925 Cut down pickup
1948 Ford F2 pickup

1925 Cut down pickup
1948 Ford F2 pickup
-
Topic author - Posts: 937
- Joined: Sun Jan 06, 2019 3:59 pm
- First Name: William
- Last Name: Vanderburg
- * REQUIRED* Type and Year of Model Ts owned: 2
- Location: Jackson, NJ
Re: differences in 25 and earlier frames from a 26
I've seen a frame that has a 26 rear cross member, but the extensions on the front were welded over the top of the existing frame. Maybe a backyard job?
William L Vanderburg
1925 Touring
1922 Center Door Sedan
1925 Touring
1922 Center Door Sedan
-
- Posts: 1359
- Joined: Thu Jan 10, 2019 5:47 pm
- First Name: Les
- Last Name: Schubert
- * REQUIRED* Type and Year of Model Ts owned: 27 roadster 13 touring
- Location: Calgary
Re: differences in 25 and earlier frames from a 26
There are important differences where the steering column attaches. The 26 frame is more “robust”(taller) and the bearing attachment holes are located differently. I learned this all “the hard way “!!
-
- Posts: 5423
- Joined: Sat Jan 05, 2019 1:57 pm
- First Name: Mark
- Last Name: Gregush
- * REQUIRED* Type and Year of Model Ts owned: 1925 cutdown PU, 1948 F2 Ford flat head 6 pickup 3 speed
- Location: Portland Or
- Board Member Since: 1999
Re: differences in 25 and earlier frames from a 26
Yes! Or repair?Will_Vanderburg wrote: ↑Tue May 12, 2020 6:17 pmI've seen a frame that has a 26 rear cross member, but the extensions on the front were welded over the top of the existing frame. Maybe a backyard job?
I know the voices aren't real but damn they have some good ideas!
1925 Cut down pickup
1948 Ford F2 pickup

1925 Cut down pickup
1948 Ford F2 pickup
-
- Posts: 3787
- Joined: Tue Jan 08, 2019 10:43 am
- First Name: Larry
- Last Name: Smith
- * REQUIRED* Type and Year of Model Ts owned: 13 Touring, 13 Roadster, 17 Coupelet, 25 Roadster P/U
- Location: Lomita, California
- MTFCA Life Member: YES
Re: differences in 25 and earlier frames from a 26
1925 frames were used for one year only. They have the same brake quadrant as the 1926-7. Early 25 frames still had the four holes, but the inner two were not used.
-
- Posts: 6860
- Joined: Sun Jan 06, 2019 7:21 pm
- First Name: Allan
- Last Name: Bennett
- * REQUIRED* Type and Year of Model Ts owned: 1912 van, 1917 shooting brake, 1929 roadster buckboard, 1924 tourer, 1925 barn find buckboard, 1925 D &F wide body roadster, 1927LHD Tudor sedan.
- Location: Gawler, Australia
Re: differences in 25 and earlier frames from a 26
And you'd need to snip some off each end of the running board supports.
Allan from down under.
Allan from down under.
-
- Posts: 3925
- Joined: Sun Jan 06, 2019 10:56 am
- First Name: Dan
- Last Name: Treace
- * REQUIRED* Type and Year of Model Ts owned: '23 cutoff pickup, '27 touring
- Location: North Central FL
- Board Member Since: 2000
- Contact:
Re: differences in 25 and earlier frames from a 26
Looking over the frame on the 1925 Coupe, and sure enough, the frame has the 4 rivet holes for the quadrant, but only two are used with the later quadrant. Appears good teeth, but will see later, after removing the clutch/brake lever, as the pawl must be shot, the lever won't hold in position.
The best way is always the simplest. The attics of the world are cluttered up with complicated failures. Henry Ford
Don’t find fault, find a remedy; anybody can complain. Henry Ford
Don’t find fault, find a remedy; anybody can complain. Henry Ford
-
- Posts: 353
- Joined: Sun Jan 06, 2019 10:29 pm
- First Name: Richard
- Last Name: Grzegorowicz
- * REQUIRED* Type and Year of Model Ts owned: 1921 T pickup
- Location: Hartland VT
Re: differences in 25 and earlier frames from a 26
HOW BOUT THE RUNNING BOARD RACKETS ,
-
- Posts: 628
- Joined: Sun Jan 06, 2019 12:32 pm
- First Name: George
- Last Name: Mills
- * REQUIRED* Type and Year of Model Ts owned: 1915 Roadster, 1919 Hack, 1925 Fordor
- Location: Cherry Hill NJ/Anona Largo FL
- Board Member Since: 1999
Re: differences in 25 and earlier frames from a 26
Will,
While I am sure there are minute differences...and some may even be functional. But the Hack that Jim in Lakehurst use to have started as a 27 chassis with demountable rims, he had early 23 running gear available in one of his sheds (fenders, splash shields, hood shelves, running boards, low hood and radiator), and he bought the 19-23 Hack body from Stolz while in Chickasa. He managed to put it all together and it looked like it was meant to be.
That Hack is now mine if you remember, and its down here in Florida now. You want pictures of any specific area, sing out and I'll get them to you or post them to you. The Hump in the rear frame caused him issue and he just cut a hole in the Hack to let the hump reach up through. I was able to fix that by buying a patch panel for a Model A hump and put it over the hole. Looks now like it was made that way.
While I am sure there are minute differences...and some may even be functional. But the Hack that Jim in Lakehurst use to have started as a 27 chassis with demountable rims, he had early 23 running gear available in one of his sheds (fenders, splash shields, hood shelves, running boards, low hood and radiator), and he bought the 19-23 Hack body from Stolz while in Chickasa. He managed to put it all together and it looked like it was meant to be.
That Hack is now mine if you remember, and its down here in Florida now. You want pictures of any specific area, sing out and I'll get them to you or post them to you. The Hump in the rear frame caused him issue and he just cut a hole in the Hack to let the hump reach up through. I was able to fix that by buying a patch panel for a Model A hump and put it over the hole. Looks now like it was made that way.
-
Topic author - Posts: 937
- Joined: Sun Jan 06, 2019 3:59 pm
- First Name: William
- Last Name: Vanderburg
- * REQUIRED* Type and Year of Model Ts owned: 2
- Location: Jackson, NJ
Re: differences in 25 and earlier frames from a 26
I remember that hack. I drove it one day. So you live in Florida now?
William L Vanderburg
1925 Touring
1922 Center Door Sedan
1925 Touring
1922 Center Door Sedan
-
- Posts: 1261
- Joined: Mon Jan 07, 2019 8:01 am
- First Name: Mark
- Last Name: Nunn
- * REQUIRED* Type and Year of Model Ts owned: 1926 Runabout
- Location: Bennington, NE
- Board Member Since: 2017
Re: differences in 25 and earlier frames from a 26
Frames were made thicker for '26 due to the heavier bodies of improved cars. My '26 measures .200" thick.
-
- Posts: 6375
- Joined: Tue Jan 08, 2019 4:56 pm
- First Name: Frank
- Last Name: Brandi
- * REQUIRED* Type and Year of Model Ts owned: Speedsters (1919 w 1926 upgrades), 1926 (Ricardo Head)
- Location: Moline IL
- Board Member Since: 2018
Re: differences in 25 and earlier frames from a 26
self explanatory. Taken from a MTFCA discussion
- Attachments
-
- Screen shot 2019-06-30 at 8.17.41 PM.jpg (57.55 KiB) Viewed 6011 times
-
- Screen shot 2019-06-30 at 8.18.23 PM.jpg (40.94 KiB) Viewed 6011 times
The past is a great place and I don't want to erase it or to regret it, but I don't want to be its prisoner either.
Mick Jagger
Mick Jagger
-
- Posts: 6375
- Joined: Tue Jan 08, 2019 4:56 pm
- First Name: Frank
- Last Name: Brandi
- * REQUIRED* Type and Year of Model Ts owned: Speedsters (1919 w 1926 upgrades), 1926 (Ricardo Head)
- Location: Moline IL
- Board Member Since: 2018
Re: differences in 25 and earlier frames from a 26
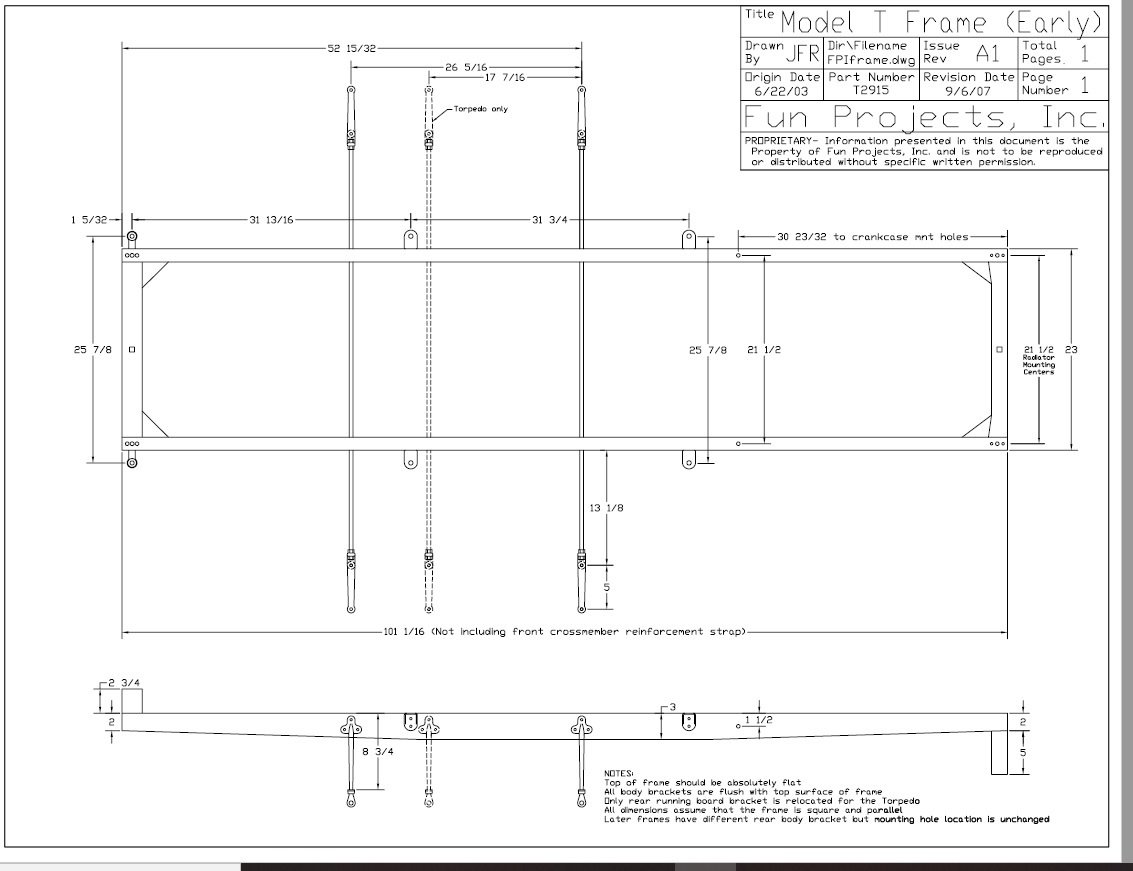
Dimensions
The past is a great place and I don't want to erase it or to regret it, but I don't want to be its prisoner either.
Mick Jagger
Mick Jagger
-
Topic author - Posts: 937
- Joined: Sun Jan 06, 2019 3:59 pm
- First Name: William
- Last Name: Vanderburg
- * REQUIRED* Type and Year of Model Ts owned: 2
- Location: Jackson, NJ
Re: differences in 25 and earlier frames from a 26
Thanks all.
My particular question was answered by my research. Thanks again
My particular question was answered by my research. Thanks again
William L Vanderburg
1925 Touring
1922 Center Door Sedan
1925 Touring
1922 Center Door Sedan
-
- Posts: 1416
- Joined: Sun Jan 06, 2019 7:00 pm
- First Name: Mack
- Last Name: Cole
- * REQUIRED* Type and Year of Model Ts owned: TT. T express pickup,speedster project.
- Location: North Carolina
Re: differences in 25 and earlier frames from a 26
some of those above pics I can't get to zoom.
I do know if you waddle over to a 26 frame with a 25 splash apron you will find the rear mounting hole for the apron to be 2 3/4 inchs further back on the 26 chassis. I know this because today I spent the better part of the day cutting the mounting tabs off the splash aprons and moving them back 2 3/4 inches to get the splash aprons to bolt on.
I do know if you waddle over to a 26 frame with a 25 splash apron you will find the rear mounting hole for the apron to be 2 3/4 inchs further back on the 26 chassis. I know this because today I spent the better part of the day cutting the mounting tabs off the splash aprons and moving them back 2 3/4 inches to get the splash aprons to bolt on.
If you can't help em, don't hinder em'