How precise do running board brackets need to be?
Forum rules
If you need help logging in, or have question about how something works, use the Support forum located here Support Forum
Complete set of Forum Rules Forum Rules
If you need help logging in, or have question about how something works, use the Support forum located here Support Forum
Complete set of Forum Rules Forum Rules
-
ivaldes1
Topic author - Posts: 960
- Joined: Mon Jan 07, 2019 1:32 am
- First Name: Ignacio
- Last Name: Valdes
- * REQUIRED* Type and Year of Model Ts owned: 1924 Touring
- Location: Houston, Tx
- Board Member Since: 2016
How precise do running board brackets need to be?
Hi so I received a running board bracket in the mail twisted and bent. I want to get them as straight as possible before sandblast and priming. I pressed it and bent it back into a close but not exact alignment with one that looks straight. How close to original shape do they have to be? The bottom one in the picture is probably straight, the top one has been straightened. The second picture is the two stacked on top of each other.
-
pete eastwood
- Posts: 205
- Joined: Sun Jan 13, 2019 6:17 pm
- First Name: Pete
- Last Name: Eastwood
- Location: Southern Califiornia
Re: How precise do running board brackets need to be?
If you want your fenders to fit properly , you need to start with the running board brackets .
" Fun Projects " has a drawing of the frame & running board brackets & their dimentions .
" Fun Projects " has a drawing of the frame & running board brackets & their dimentions .
-
TRDxB2
- Posts: 6581
- Joined: Tue Jan 08, 2019 4:56 pm
- First Name: Frank
- Last Name: Brandi
- * REQUIRED* Type and Year of Model Ts owned: Speedsters (1919 w 1926 upgrades), 1926 (Ricardo Head)
- Location: Moline IL
- Board Member Since: 2018
Re: How precise do running board brackets need to be?
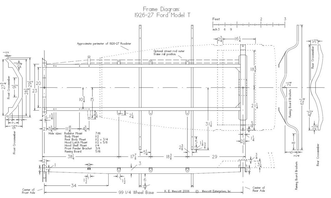
Here are a couple of diagrams for a '26 frame
The past is a great place and I don't want to erase it or to regret it, but I don't want to be its prisoner either.
Mick Jagger
Mick Jagger
-
Allan
- Posts: 7279
- Joined: Sun Jan 06, 2019 7:21 pm
- First Name: Allan
- Last Name: Bennett
- * REQUIRED* Type and Year of Model Ts owned: 1912 van, 1917 shooting brake, 1929 roadster buckboard, 1924 tourer, 1925 barn find buckboard, 1925 D &F wide body roadster, 1927LHD Tudor sedan.
- Location: Gawler, Australia
Re: How precise do running board brackets need to be?
Ignatio, I see just one bolt hole on the outside end of one bracket. If that is true of the other one also, they are for pre 26-7 T's. The latter brackets are wider, and have two holes on the outside end. 26-7 fenders will not bolt directly to the narrower brackets. So, it depends on what fenders you are going to use, if any, whether those brackets are what you want.
Hope this helps.
Allan from down under.
Hope this helps.
Allan from down under.
-
ivaldes1
Topic author - Posts: 960
- Joined: Mon Jan 07, 2019 1:32 am
- First Name: Ignacio
- Last Name: Valdes
- * REQUIRED* Type and Year of Model Ts owned: 1924 Touring
- Location: Houston, Tx
- Board Member Since: 2016
Re: How precise do running board brackets need to be?
Right so we are doing a 1916 theme on a 26-27 frame. 26-27 differential for better braking and it is what the frame came with. The hay wagon chassis did not come with running board brackets so I am not perturbing history and can do what is desired. These are early brackets since we are going to be doing early fenders and running boards. Thanks for the diagrams.
-
RustyFords
- Posts: 1559
- Joined: Sun Jan 06, 2019 11:16 am
- First Name: Don
- Last Name: Allen
- * REQUIRED* Type and Year of Model Ts owned: 1924 Touring
- Location: Houston, TX
Re: How precise do running board brackets need to be?
I have a complete set attached to the skeleton of a 25 frame if you want some more....free to a good home.
1924 Touring
-
Ken Buhler
- Posts: 560
- Joined: Mon Jan 21, 2019 4:14 pm
- First Name: Ken
- Last Name: Buhler
- * REQUIRED* Type and Year of Model Ts owned: 1927 Roadster 1927 Coupe
- Location: Kelowna B.C.
- Board Member Since: 2012
Re: How precise do running board brackets need to be?
Ignacio,
I am reverse engineering a 1927 roadster, in that I am documenting all of the measurements of everything as I go. What I have found so far is that the designers did everything on a graph. Vertical, horizontal, and arc. I have found that it is safe to say that all of the measurements can be based on that simple principle. I have photos of the stages so far. If you want any of the measurements, I am happy to share.
Ken Buhler
I am reverse engineering a 1927 roadster, in that I am documenting all of the measurements of everything as I go. What I have found so far is that the designers did everything on a graph. Vertical, horizontal, and arc. I have found that it is safe to say that all of the measurements can be based on that simple principle. I have photos of the stages so far. If you want any of the measurements, I am happy to share.
Ken Buhler
Work honestly
Stay true to your word
Get the job done right
Stay true to your word
Get the job done right