Express or other wood body ideas

Discuss all things Model T related.
Forum rules
If you need help logging in, or have question about how something works, use the Support forum located here Support Forum
Complete set of Forum Rules Forum Rules

Topic author
1923orange
Posts: 66
Joined: Tue Sep 15, 2020 11:19 pm
First Name: Thomas
Last Name: Black
* REQUIRED* Type and Year of Model Ts owned: 1923 touring
Location: Tennessee

Express or other wood body ideas

Post by 1923orange » Sun Dec 31, 2023 4:01 pm

I’m looking to build a very simple express open top body. Anyone have any pictures or measurements they would be willing to share? Especially on how the body attaches to the frame. Thank you


Topic author
1923orange
Posts: 66
Joined: Tue Sep 15, 2020 11:19 pm
First Name: Thomas
Last Name: Black
* REQUIRED* Type and Year of Model Ts owned: 1923 touring
Location: Tennessee

Re: Express or other wood body ideas

Post by 1923orange » Wed Jan 03, 2024 9:53 pm

Bump anyone?


Been Here Before
Posts: 654
Joined: Mon Oct 07, 2019 2:00 pm
First Name: George John
Last Name: Drobnock
* REQUIRED* Type and Year of Model Ts owned: 1922 Coupe
Location: Central Pennsylvania

Re: Express or other wood body ideas

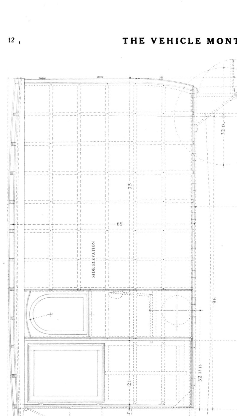
Post by Been Here Before » Wed Jan 03, 2024 10:47 pm

Is this a starting place?
scan0066rev.JPG
scan0067rev.JPG
scan0068rev.JPG


tdump
Posts: 1420
Joined: Sun Jan 06, 2019 7:00 pm
First Name: Mack
Last Name: Cole
* REQUIRED* Type and Year of Model Ts owned: TT. T express pickup,speedster project.
Location: North Carolina

Re: Express or other wood body ideas

Post by tdump » Wed Jan 03, 2024 11:51 pm

I got the express pickup plans from Wagon works and I did modify slightly a couple details.I was not experienced on working with plans and it was a learning experience.
If you can't help em, don't hinder em'


CraneJon
Posts: 93
Joined: Sun Jan 06, 2019 10:55 am
First Name: jon
Last Name: crane
* REQUIRED* Type and Year of Model Ts owned: 1925 T pickup, 1928 A, 1931 A
Location: rochester mich

Re: Express or other wood body ideas

Post by CraneJon » Thu Jan 04, 2024 1:59 am

Wagon Works Plans from Iowa are the best deal in town. The plans give you all the framing dimensions. You will then customize them as you move through the build. Fun project.
Jon


Been Here Before
Posts: 654
Joined: Mon Oct 07, 2019 2:00 pm
First Name: George John
Last Name: Drobnock
* REQUIRED* Type and Year of Model Ts owned: 1922 Coupe
Location: Central Pennsylvania

Re: Express or other wood body ideas

Post by Been Here Before » Thu Jan 04, 2024 2:18 pm

For giggles and what not, remember that pre-1923 Fords ( and some others) depended on their bodies to be of a wooden frame and metal covering. Meaning that the business depended on coach builders familiar with wood frame construction.

Suggest a read or at least a view of the following literature.
Scancoachbuilding.jpg

User avatar

TRDxB2
Posts: 6450
Joined: Tue Jan 08, 2019 4:56 pm
First Name: Frank
Last Name: Brandi
* REQUIRED* Type and Year of Model Ts owned: Speedsters (1919 w 1926 upgrades), 1926 (Ricardo Head)
Location: Moline IL
Board Member Since: 2018

Re: Express or other wood body ideas

Post by TRDxB2 » Thu Jan 04, 2024 3:22 pm

1923orange wrote:
Sun Dec 31, 2023 4:01 pm
I’m looking to build a very simple express open top body. Anyone have any pictures or measurements they would be willing to share? Especially on how the body attaches to the frame. Thank you
open x.jpg
Attachments
x cc.jpg
The past is a great place and I don't want to erase it or to regret it, but I don't want to be its prisoner either.
Mick Jagger

Post Reply Previous topicNext topic